loading
| Availability: | |
|---|---|
| Quantity: | |
BUL1116
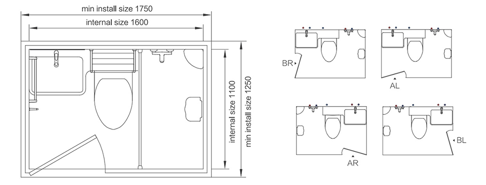
Dimensions | Internal | External |
Width | 1100mm | 1250mm |
Length | 1600mm | 1750mm |
Height | 2000mm/2200mm | 2500mm/2650mm |
Available | 1.76㎡ | |
Weight | ≤220kg | |
Application Field | Hotel, Apartment, Real Estate, Modular House, Hospital, etc. | |
Shipping Info | 48 sets flat packing/40 HC | |


| BUL1116 | ||
| Name | Specification | |
| Main parts | SMC mold floor | 1100x1600mm |
| SMC mold walls | H=2000/2200mm | |
| SMC mold ceiling | 1100x1600mm | |
| door | 600x2000mm | |
| floor drain | ||
| Washing | SMC mold basin | L=1000mm |
| basin faucet | single handle single holes | |
| mirror | 500x700mm | |
| towel rail | L=400mm, ABS | |
| rectanglular rack | ABS | |
| WC | toilet | top press |
| paper holder | ABS | |
| Shower | shower faucet | single handle double holes |
| shower towel rail | L=400m, ABS | |
| water retaining strip | ||
| Glass shower screen/shower curtain (rod) | ||
| soap stand | ABS | |
| Appliance | LED light | 4000k |
| exhaust fan | one-piece exhaust fan | |
| socket | ||
| Installation parts | fixing frame sets | |
| watersupply pipes | length 150mm higher than the bathroom wall | |
| sewage pipes | ||
| sealant | ||